VIRGINIA, Culpeper, VA 22701
Multi-Family Home
Built in ——
2.45acre lot
—— car garage
$——/sqft
Listed 23 days ago
Property Description
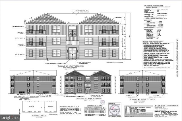
Looking to build a multi-family investment property in Culpeper, VA? Finding land zoned by right for multi-family development is nearly impossible these days and rezoning a property for that use is even more challenging. The approvals for this project have taken years to secure, and now Willow Grove is just weeks away from being fully shovel-ready. This project has full site plan approval from the Town of Culpeper to construct two buildings totaling 30 units, including a rentable management office. Owner has also obtained full building permit approval for the blueprints. The units are permitted under current codes to be converted into condominiums and sold individually. Additionally, the newly assigned RX zoning provides significant flexibility, including allowance for short-term rentals. While short-term rentals were prohibited in many zoning classifications during the Town of Culpeper’s recent zoning overhaul, they were not banned under this designation — a major advantage for Willow Grove. The only remaining entitlement is the utility plat and deed required by the Town. Surveyor and attorney are currently preparing the remaining minor edits for the third submission. All necessary utilities are already present and accessible on the property, including gravity-fed sewer, power and water. Comcast is readily available to supply internet as well. Located in an area with a near-zero rental vacancy rate, this presents a strong long-term investment opportunity. The Pro Forma included in the Realtor documents projects an estimated 7.01% cap rate for long-term rentals. Incorporating short-term rental units could potentially increase that return even further. Approved blueprints and all related documents are available upon request.
- Listing Status:
- Active
- Data Last Updated:
- March 28, 2026 at 5:18PM
- Listing Office:
- RE/MAX Gateway : 5403411000
- Listing Agent:
- Jacob A McNemar : 5407181163
- MLS ID:
- VACU2012828

- General: Mixed
- Originating MLS: BRIGHT_MAIN
- School District: CULPEPER COUNTY PUBLIC SCHOOLS
- County: CULPEPER-VA
- Zoning: RX40 75
- Water: None
- Sewer: No Sewer System
- Source: BRIGHT_MAIN
This listing courtesy of Jacob A McNemar , RE/MAX Gateway
Monthly Payment
- Principal & Interest $
- Property Taxes $
- Home Insurance $
- VA Funding Fee $
Location
Schools Nearby
Yowell Elementary School
701 Yowell Dr, Culpeper, VA, 22701
Grades PK-5
0.93 miles away
Floyd T. Binns Middle School
205 Grandview Ave, Culpeper, VA, 22701
Grades 6-8
1.07 miles away
Culpeper County High School
14240 Achievement Dr, Culpeper, VA, 22701
Grades 9-12
1.63 miles away

